00 Woodridge RoadHampstead, NH 03841
Due to the health concerns created by Coronavirus we are offering personal 1-1 online video walkthough tours where possible.




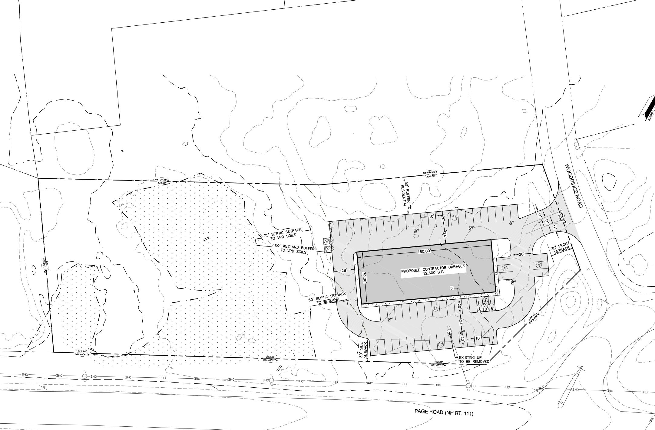
Lot is cleared and ready for your vision! POSSIBLE LAND LEASE. One of the last viable commercial lots in Hampstead with over 600 feet of frontage on Route 111. 3.73 acre C-1 Commercial/Residential lot. Possible hook up to city water across the street. Permitted Uses Include: A. Any retail business such as: book, stationery, or news store, drug store, dry goods or variety store, jewelry store, florist or gift shop, grocery store, hardware store, meat market, or wearing apparel store, limited to indoor sales. B. Any service establishments such as: barber shops, beauty shops, custom tailors, shoe repair, self-service, laundry, banks, restaurants, business and professional offices, limited to indoor sales and service. C. Automotive filling and service stations. D. Schools, day care and nursery centers and adult care centers. E. Cargo Storage Containers. Agent interest.
| 4 months ago | Listing updated with changes from the MLS® | |
| 4 months ago | Price changed to $799,900 | |
| 7 months ago | Listing first seen on site |
Copyright 2026, PrimeMLS, Inc. All rights reserved. This information is deemed reliable, but not guaranteed. The data relating to real estate displayed on this display comes in part from the IDX Program of PrimeMLS. The information being provided is for consumers’ personal, noncommercial use and may not be used for any purpose other than to identify prospective properties consumers may be interested in purchasing.
Last checked: 2026-05-20 06:00 PM UTC

Did you know? You can invite friends and family to your search. They can join your search, rate and discuss listings with you.